Descubre Casa Verona, tu oasis de tranquilidad te espera en San Ramón Norte

Ubicada en una de las zonas más exclusivas de Mérida, esta residencia te ofrece una vida de lujo, privacidad y comodidad. Un diseño excepcional y una ubicación insuperable se combinan para crear el hogar que siempre soñaste.

5 habitaciones

7 baños

Cochera

34 paneles solares

Alberca 4 x 7 M

553 m2

De construcción

807 m2

De terreno

35.94 m

De fondo

35.94 m

De frente

15%

Pago inicial

Interiorsimo

incluído

Contado o crédito

Forma de pago

1 mes

Entrega

2021

Antigüedad

Espacios Pensados para ti

Vive sin preocupaciones. Esta casa no solo impresiona con sus 5 habitaciones y 7 baños, sino que también te ofrece un futuro sostenible gracias a sus 34 paneles solares. Con 807 m² de terreno y un interiorismo de lujo ya incluido, tu único trabajo es disfrutar.

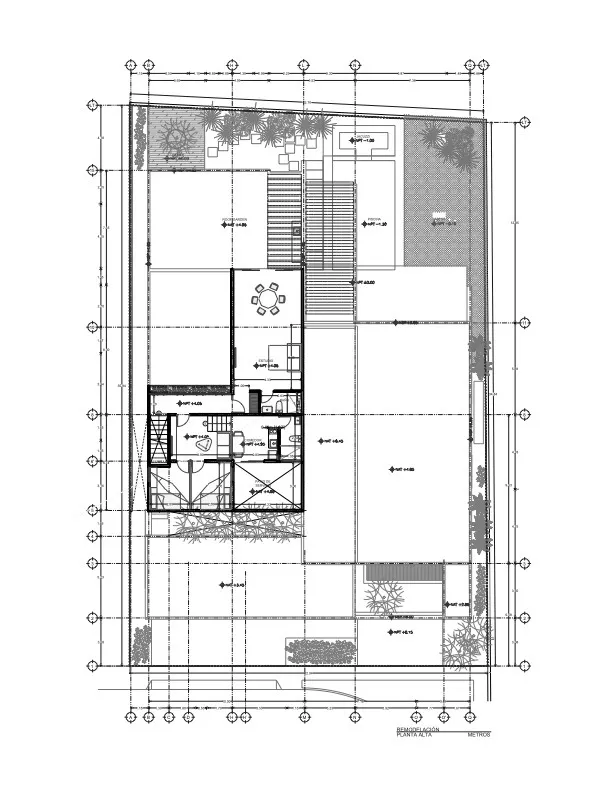
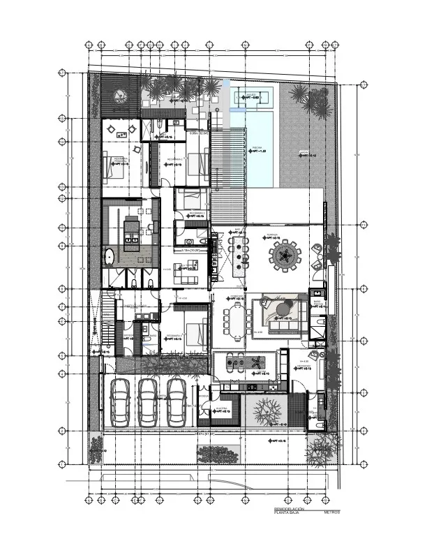
El Espacio Ideal para Ti

Descubre el diseño inteligente de Casa Verona. Estos planos te invitan a visualizar la fluidez de sus espacios, pensados para maximizar la comodidad y la vida familiar. Cada rincón es un lienzo en blanco esperando que escribas tu próxima historia.

Tu Nuevo Hogar, a Minutos de Todo

La exclusividad no tiene por qué estar lejos de todo. Gracias a su ubicación privilegiada, esta residencia te conecta con los mejores servicios, centros comerciales y restaurantes, ofreciéndote lo mejor de ambos mundos: tranquilidad y conveniencia.

La Experiencia Completa te Espera

Las imágenes son solo el inicio. Ahora, te invitamos a un recorrido personal que te revelará la verdadera esencia de Casa Verona. Siente la calidez del hogar, la amplitud de sus áreas y la calidad de sus acabados.

Dale play al video y, cuando estés listo para hacer realidad este sueño, el formulario a tu derecha te espera.

Las imágenes son solo el inicio. Ahora, te invitamos a un recorrido personal que te revelará la verdadera esencia de Casa Verona. Siente la calidez del hogar, la amplitud de sus áreas y la calidad de sus acabados.

Dale play al video y, cuando estés listo para hacer realidad este sueño, el formulario te espera.

+52  (999) 575 4407

Calcula los números de piezas con metros cuadrados

Largo (metros)
Ancho (metros)
Total m2
0.00
¿Qué tipo de producto buscas?
fachada-casa-de-lujo
Piezas que requieres
0.00
Piezas que requieres
0.00
Piezas que requieres
0.00
Piezas que requieres
0.00
Piezas que requieres
0.00

Select your currency
MXN Peso mexicano
Scroll al inicio
0